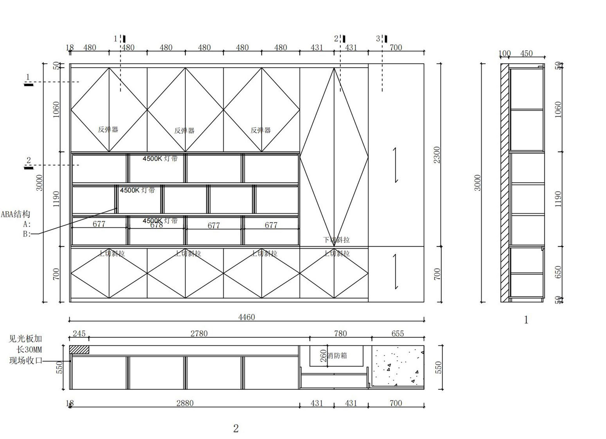
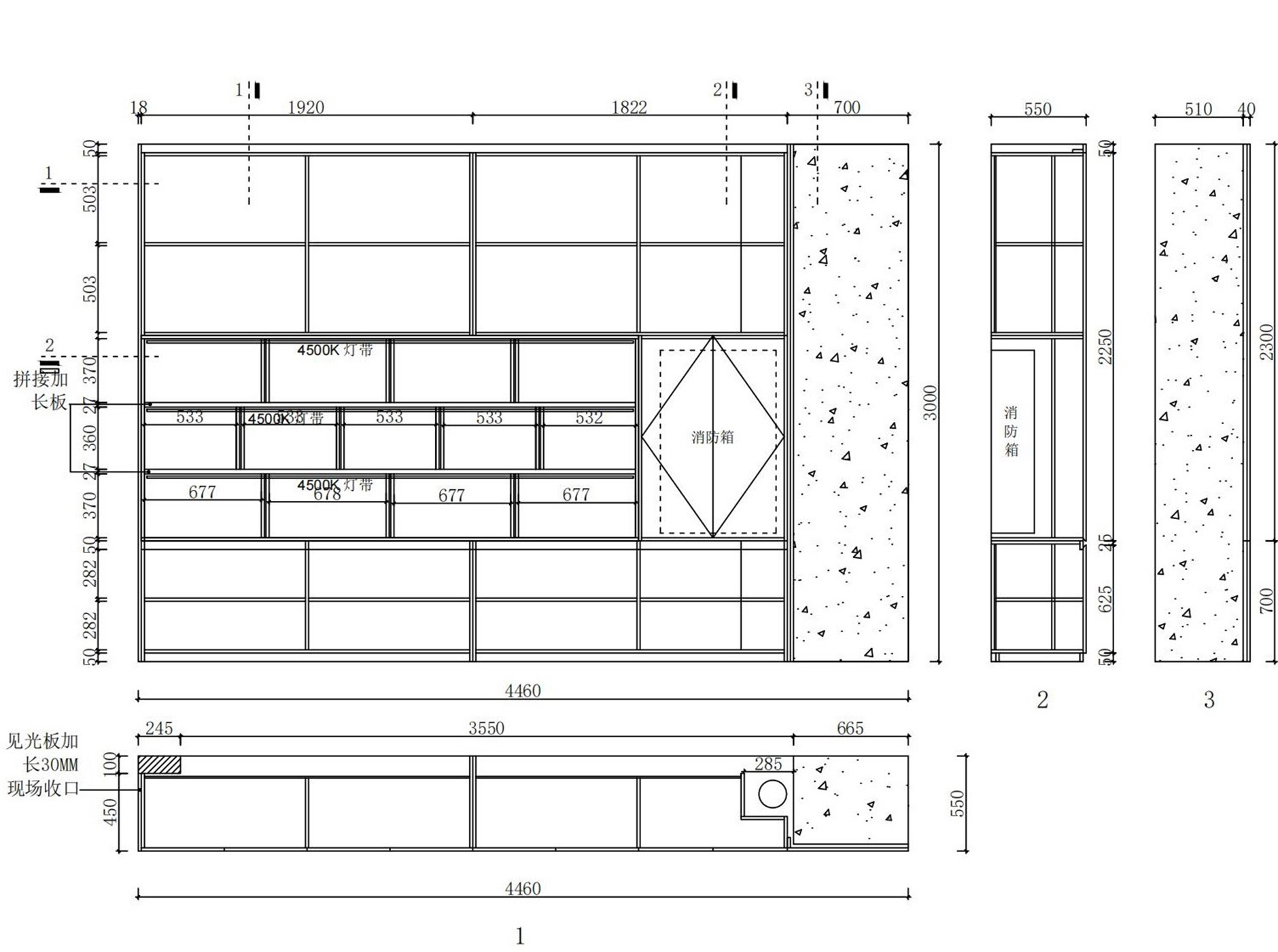
Manager Customized Cabinet
[Modern Office Aesthetics Space] The spacious general manager's office is dominated by dark brown wood grain and light gray marble, equipped with a Zen style conference table and customized cabinets, showcasing a team collaboration atmosphere. The independent office area is equipped with leather chairs and multifunctional solid wood customized cabinets, paired with artistic floral arrangements and floor lamps, enhancing decision-making efficiency through the interplay of light and shadow. The panoramic french window introduces natural light to create an efficient business aesthetic scene without losing temperature.

3D


CAD



Leave a comment