Designing a Bridge Across Cultures A New Office Space for a Lebanese Entrepreneur in Guangzhou

Designing a Bridge Across Cultures A New Office Space for a Lebanese Entrepreneur in Guangzhou

The story begins with the client's infinite longing for an ideal office environment. As a Lebanese entrepreneur settled in Guangzhou, he understands the importance of an office space that reflects personal taste and meets the needs of efficient operations for team morale and business development. Therefore, he approached us—a design company specializing in high-end office space design and production—hoping we could work together to turn this pursuit of beauty into reality.

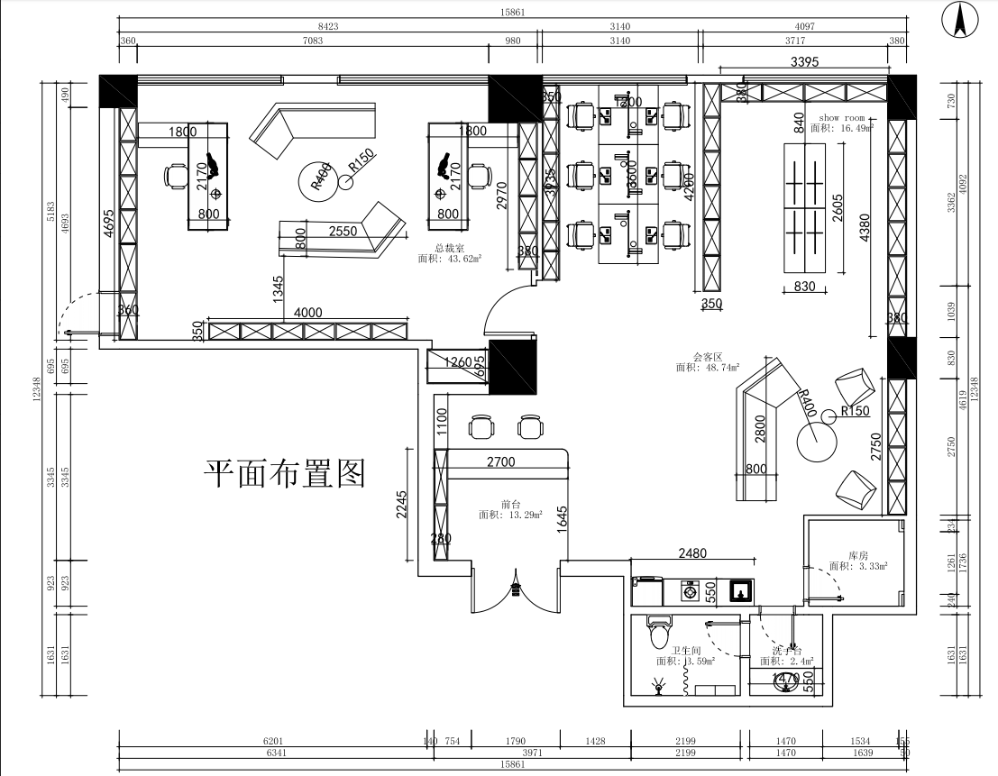
Upon receiving the task, our design team swiftly acted, flying to Guangzhou to personally step into the client's existing office space for detailed on-site measurements. From spatial layout to light utilization, from color matching to material selection, every detail was carefully considered, aiming to create an office space for the client that not only reflects Lebanese fashion art style but also adapts to Guangzhou's modern office environment.

During the design process, we paid special attention to the selection and matching of furniture, especially the use of Leather furniture. We meticulously picked a series of Leather tables and Art furniture that not only offer exceptional comfort and durability but also become the visual focus of the entire space with their unique design sense. These furniture pieces not only embody the Lebanese pursuit of quality of life but also seamlessly integrate into Guangzhou's fashionable atmosphere, showcasing the harmonious coexistence of online fashion and physical space.

As an Office furniture manufacturer, we strictly controlled the design and production processes to ensure that every piece of furniture meets the highest standards. From design sketches to finished product assembly, every step embodies our commitment to quality and attention to detail.

After months of careful planning and production, the new office space finally unveiled its mysterious veil. The reception area greets every visitor with a simple yet elegant design, where the clever fusion of Leather furniture and Art furniture instantly conveys the charm of Lebanese culture and the modern atmosphere of Guangzhou. Inside the office, Open plan and Private offices complement each other, ensuring both team communication and collaboration and personal privacy. Especially that Leather table, which is not only the center of work but also a source of inspiration.

This project is not just a design practice but also a cultural exchange. We feel deeply honored to be the bridge connecting Lebanon and Guangzhou, tradition and modernity, art and commerce. In the future, we will continue to uphold the concept of designevo, continuously explo