Villa Furniture Project
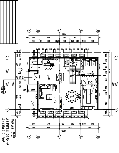
The customer provided a floor plan and style requirements, and we carefully crafted furniture to match them. Customize dining tables, comfortable beds, elegant tea tables, and practical background cabinets based on spatial layout and preferred styles. From design to material selection, every step is strictly controlled, striving to present customers with furniture combinations that meet their needs and are aesthetically pleasing and practical.







Leave a comment